ALLEN DESIGNS

Consulting Structural Engineers

27201 Puerta Real #300
Mission Viejo, CA 92691
(949) 248-8588
Bill@AllenDesigns.com

Escamilla Residence

Laguna Niguel, C


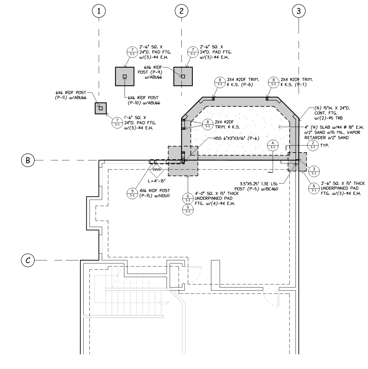
Proposed Partial Foundation Plan

Proposed Partial Foundation Plan

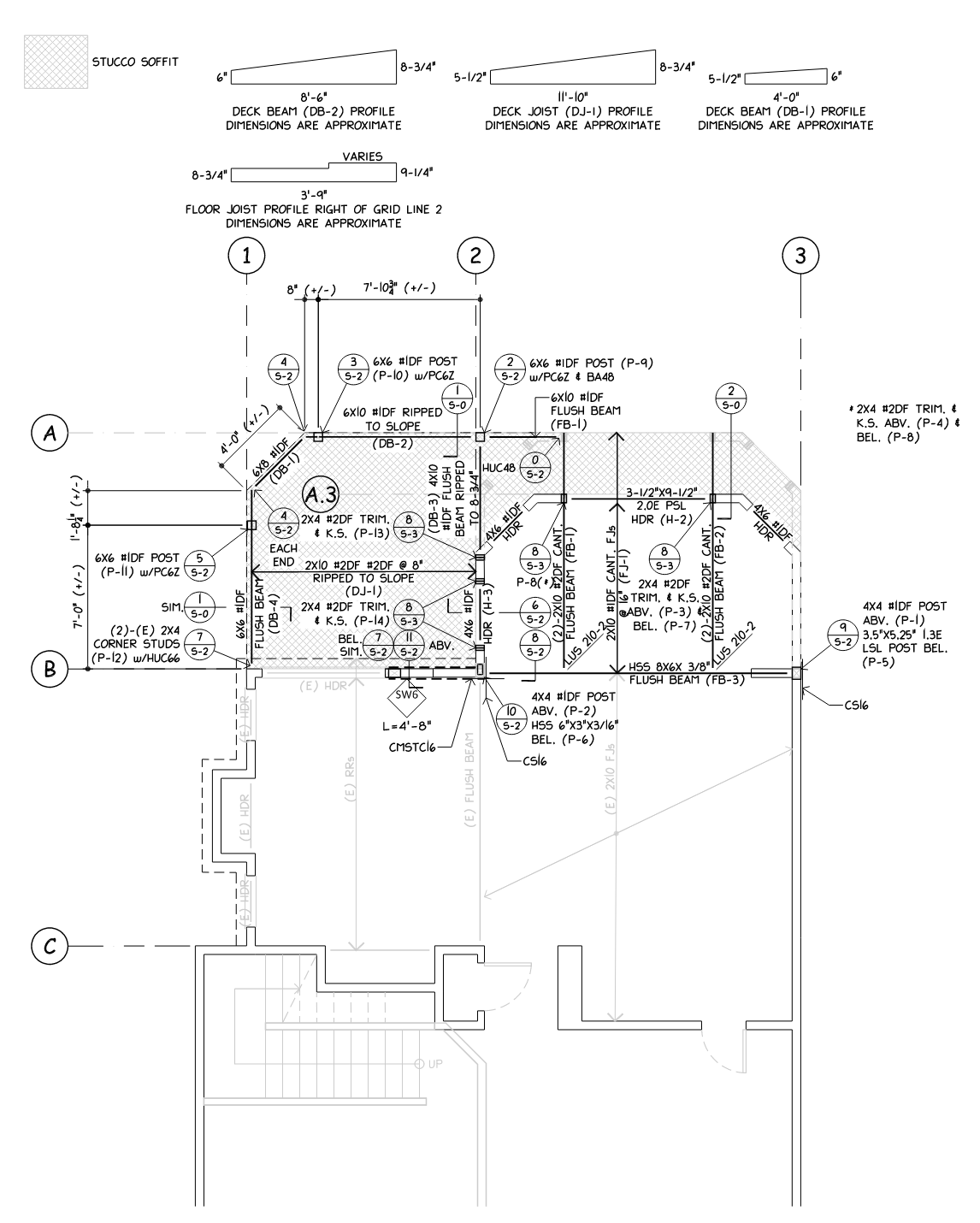
Proposed Partial Floor Framing Plan

Proposed Partial Floor Framing Plan

Proposed Roof Framing Plan

Proposed Roof Framing Plan