ALLEN DESIGNS
Consulting Structural Engineers
Orange County, CA Office Phoenix, AZ Office
27201 Puerta Real #300 4742 N 24th St., Suite 300
Mission Viejo, CA 92691 Phoenix, AZ 85016
(949) 248-8588 (480) 503-8850
Bill@AllenDesigns.com

Specializing in the structural engineering of wood framed structures with the objective of producing clear and concise structural plans and details saving time and money at the jobsite.
Mallenhaven Residence, Laguna Niguel, CA
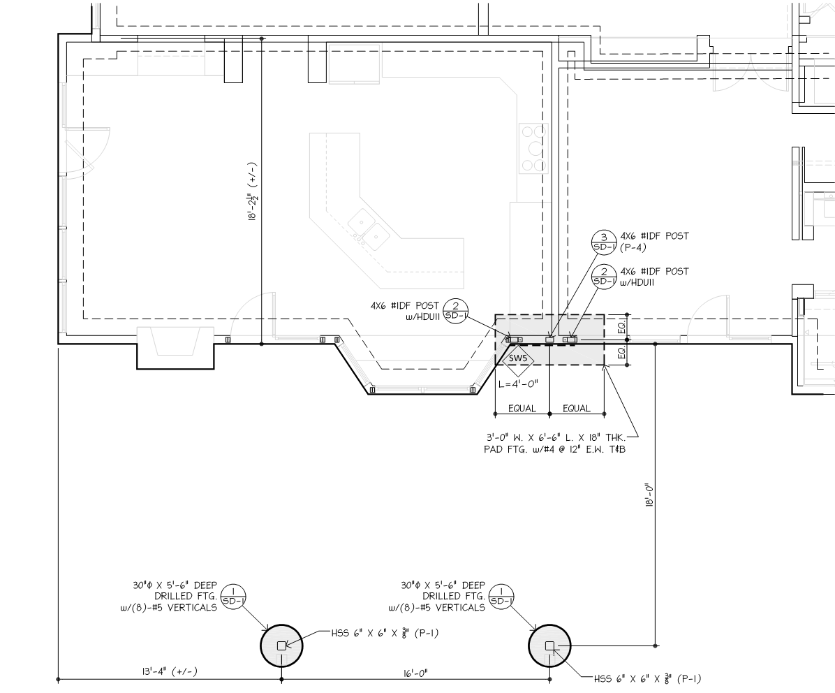
Foundation Plan
Foundation Plan
Roof Framing Plan
Roof Framing Plan