ALLEN DESIGNS
Consulting Structural Engineers
Orange County, CA Office Phoenix, AZ Office
27201 Puerta Real #300 4742 N 24th St., Suite 300
Mission Viejo, CA 92691 Phoenix, AZ 85016
(949) 248-8588 (480) 503-8850
Bill@AllenDesigns.com

Specializing in the structural engineering of wood framed structures with the objective of producing clear and concise structural plans and details saving time and money at the jobsite.
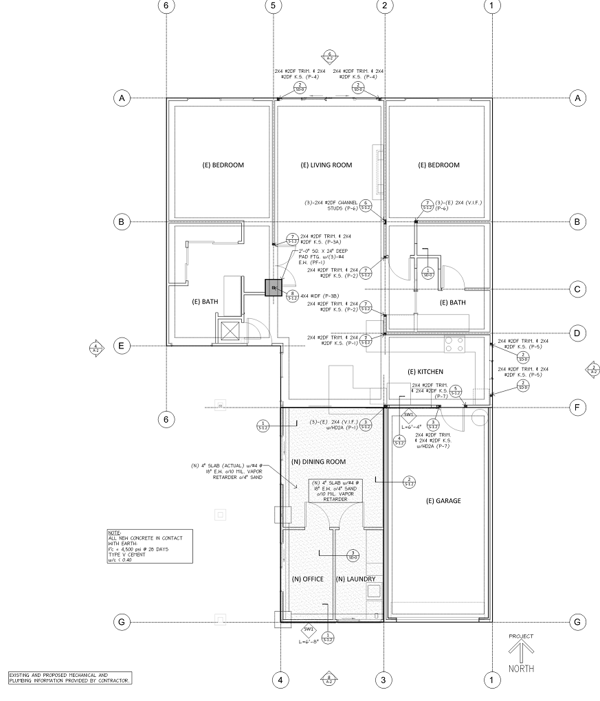
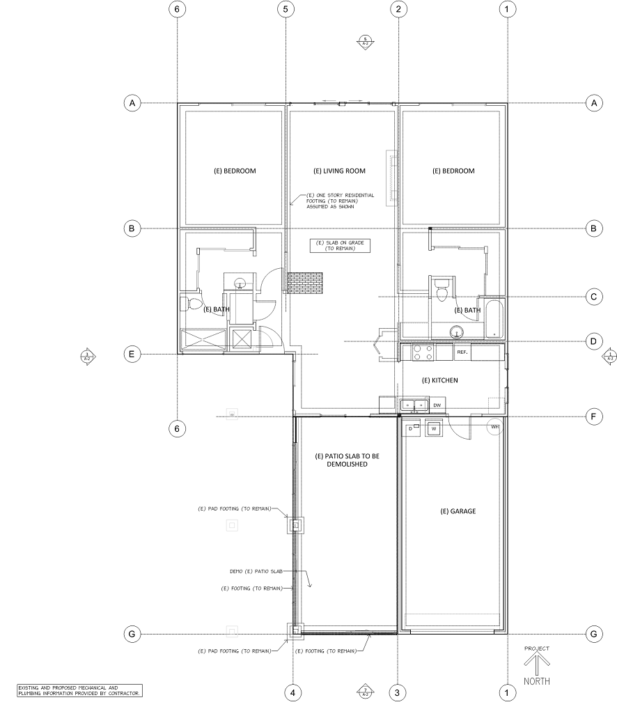
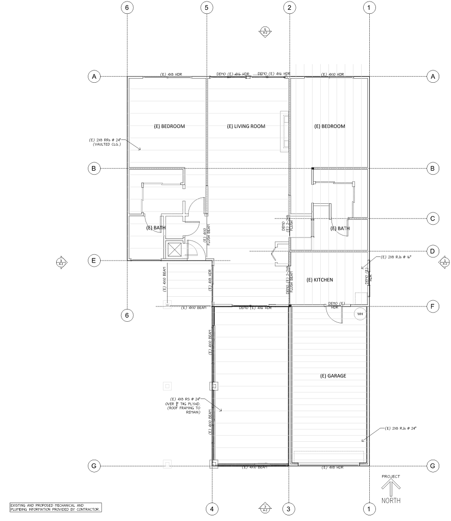
Lewis Residence, Laguna Woods, CA
Existing Foundation Plan
Existing Foundation Plan
Proposed Foundation Plan
Proposed Foundation Plan
Existing Roof Framing Plan
Existing Roof Framing Plan
Proposed Roof Framing Plan
Proposed Roof Framing Plan